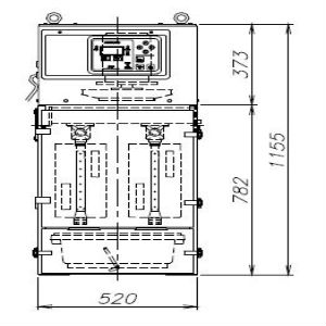
15N/30N/45N/60N
- Energy and Space Saving Pulse Jet Type Dust Collector
- Auto Pulse Jet Dust removal
- 24/7 Operation
- High Efficiency Motor.
- Comes with inverter that automatically adjust the speed and longer filter life.
- With differential pressure sensor.
- With data logging function.
- Can be integrate with machine on/off.
































